Ставрополь, 11-й м-н, Серова, 468/3
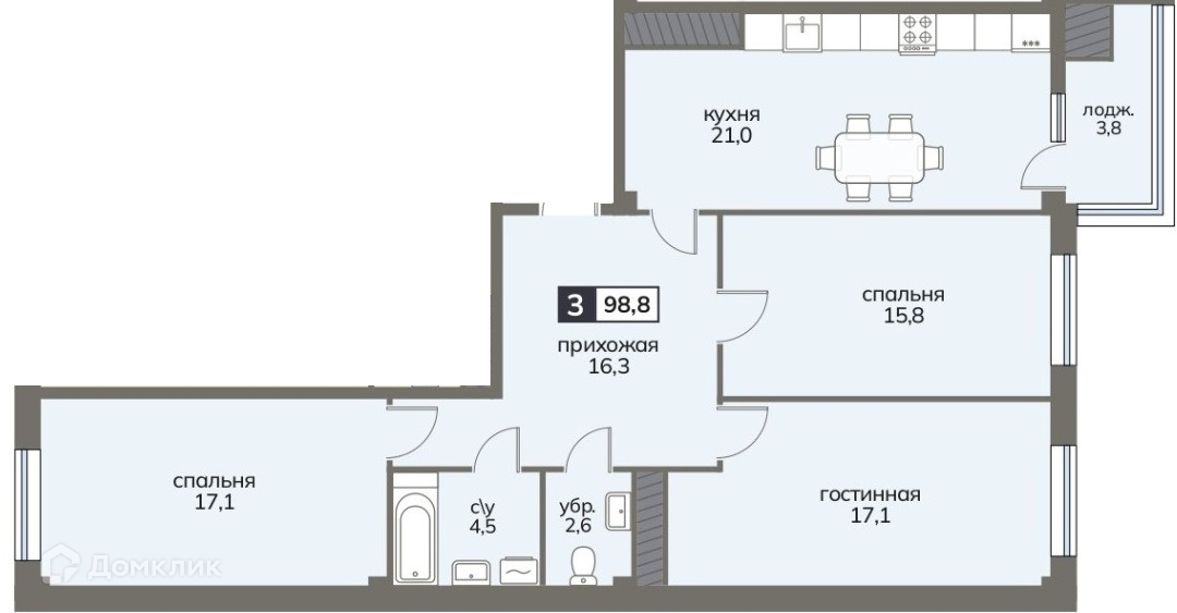
Площадь
Жилая
Кухня
Отделка
Класс жилья
Комнат
Номер кв.
Этаж
В продаже 3-комнатная квартира в востребованном жилом комплексе "ЖК Клубный дом "Серов"" 🏢. Квартира расположена на 8-м этаже 13-этажного дома. Отличный вариант для инвестиций.
Чтобы узнать подробности и зафиксировать цену — свяжитесь с нами прямо сейчас! 📞
✅ Индивидуальное отопление и система «теплый пол» ✅ Панорамное остекление начиная с 10 этажа. Оконная система EXPROF Profecta 70мм, пятикамерный профиль, двойной контур уплотнения. ✅ Входные металлические двери марки TOREX. ✅ В каждом подъезде установлены лифты с бесшумным и плавным ходом. ✅ Общая толщина внешних стен 42 см. ✅ Фасадные корзины под установку кондиционеров. ✅ Наружная отделка комплекса выполнена из керамического кирпича. В ночное время фасады дома будут подсвечиваться архитектурной подсветкой.
Срок сдачи: 4 кв. 2025 г.
Срок сдачи: 4 кв. 2025 г.
Площади квартир
Этажность
Класс жилья
Корпусов
Стены