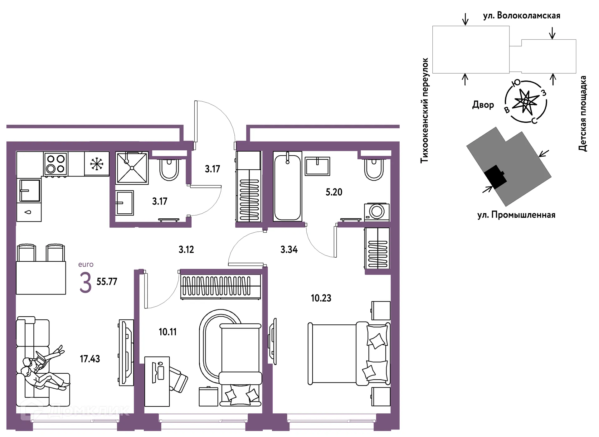
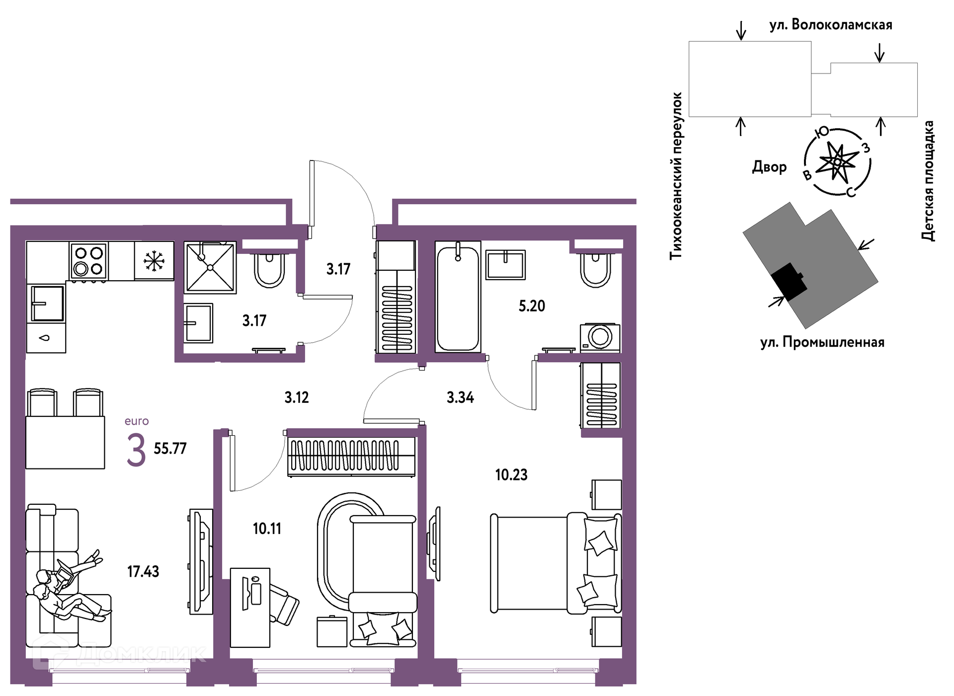
Тюмень, Строящийся жилой комплекс "Страна Прибрежная"
Площадь
Жилая
Кухня
Отделка
Класс жилья
Комнат
Номер кв.
Этаж
 
                  Получить субсидию от застройщика
 
                  Максимальная скидка на ставку ипотеки!
Срок сдачи: 4 кв. 2026 г.
Срок сдачи: 4 кв. 2026 г.
Площади квартир
Этажность
Отделка
Класс жилья
Количество корпусов
Тип стен